Set on approx. 2.5240 Ha this superb home has been designed to take full advantage of the northern aspect and the brilliant views looking out towards Mt Canobolas. Built by a renowned local builder (Millthorpe Constructions), this property surpasses the standard for contemporary family living in a rural lifestyle setting. Vast open-plan living areas are at the heart of the home, and just in time for summer, they can be opened to the extensive outdoor entertaining area making the most of the magnificent views. Perfectly private and situated only 26km from Orange, 13 km to Millthorpe and very close to the Forest Reefs tavern this property is well positioned with modern facilities close by.
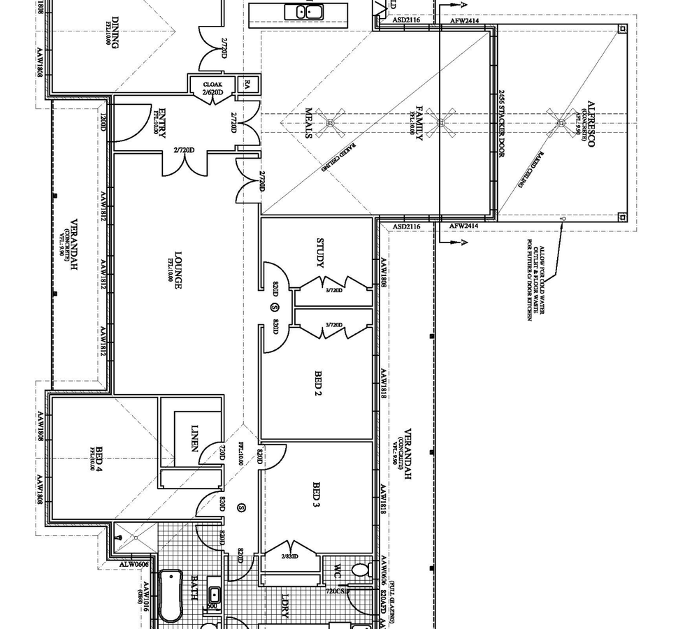
• Open plan kitchen, dining and family room with raked ceilings, separate theatre room/formal living room and rumpus room.
• Gourmet kitchen with quality appliances, plenty of bench space and storage with extra-large walk-in pantry
• Four generous sized bedrooms appointed with built-in robes and rural views.
• Fifth Bedroom/Study with built-ins, perfect for the home office and those working from home
• Spacious main bedroom with generous walk-in robe and modern ensuite. Amazing views through the double-glazed glass doors
• Ensuite bathroom has underfloor heating. The main bathroom includes a bath. Well-designed laundry with good use of bench space and cupboards.
• Large walk -in linen/storage room
• Added comfort with double glazed windows, all external walls are insulated, ducted reverse cycle heating/cooling, wood heater and ceiling fans to the casual living area and alfresco area. 13KW solar capacity to assist with energy consumption
• Stylish manicured gardens and house yard
• Fabulous undercover alfresco entertaining area complete with built in BBQ, plumbing and ceiling fan.
• 9 x 15 metre shed with mezzanine floor, 3 phase power and carport attached
• Currently running a small flock of sheep, there are plenty of options to take advantage of
• Well fenced to several paddocks and automatic entrance gate
• Water supply includes dam, bore with solar panel pump, 2 bore tanks 22,500 litre each and 100,000 litre rainwater tank
Features
- Ducted Heating
- Ducted Cooling
- Outdoor Entertainment Area
- Remote Garage
- Shed
- Built-in Wardrobes
- Dishwasher
- Study
- Solar Panels
- Water Tank





























